買いたい
FOR SALE
湘南を極めた七里ガ浜のヒルトップ【戸建】
鎌倉×売買
ついに!
完成しました!
七里ヶ浜2丁目住宅のヒルトップ新築物件!

ヒルトップのルーフバルコニーなので、もはや目線を遮るものはありません。
と、まぁ。最初に素敵な景色を見ていただきましたが、お家もご紹介していきます!

シャッター付きのガレージと、

外の駐車場2台。
計3台止めることが可能です。
七里ヶ浜2丁目で3台車が止められるのはとても魅力的です!
セカンドハウスとして購入すれば各地から仲間が集まっても問題ありません!
.jpg)
先ほどのガレージ!
奥には、サーフボード置場があったり、中から階段でシューズクロークに繋がっております。
.jpg)
さて、室内に入ります!
最初にお伝えしておきます。
こちらの物件。
家具・家電付き!
です。
玄関入った瞬間から感じるラグジュアリー空間。
室内には、北欧生まれのレガレット式床暖房や発泡ウレタン断熱材など
家の内側にもしっかりとした施工が施されております。
こちらは、完全プライベートの中庭。
一人の時間を楽しみたい方にオススメ。
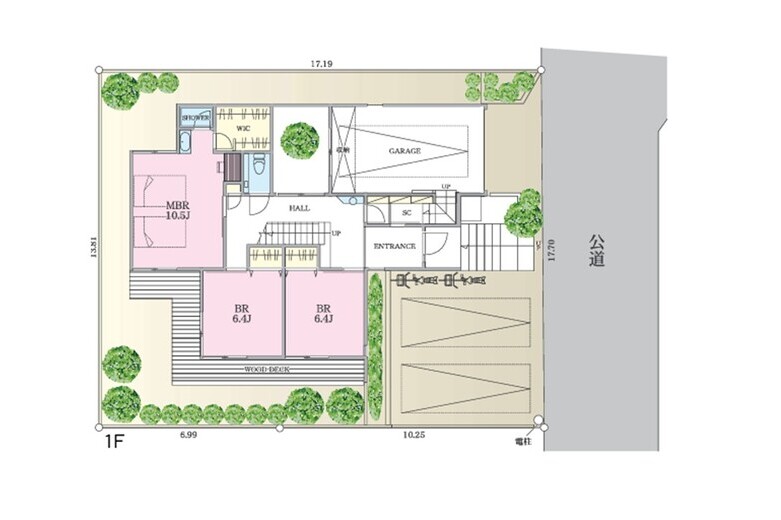
1階のメインベッドルーム。
お部屋の脇には、書斎スペースとウォークインクローゼット、、
そして、贅沢にもシャワールーム。
1階の3部屋すべてに繋がっている縁側。
ここでは、ワンちゃんや猫ちゃんを遊ばせるのに最適です。
1階のトイレも高級感のあるスタイリッシュなデザイン。

.jpg)
2階に上がるとまず目につくのは、
琉球畳に掘りごたつがある和室。
お客様をお通しする「応接間」といったところでしょうか。

優雅なリビングに行くと、大きな窓ガラスからは光が入り、
その奥には、リビングバルコニー!

江ノ島や海を望めます。

キッチンも広く、収納が豊富。
オーダーメイドの特注品が入っています。

ツーボールの洗面化粧台。
奥には洗濯スペースとして、ガス乾燥機も付いています。
そして!
お風呂!!

なんという広さでしょう!
こちらもラグジュアリー空間!家族みんなで入れる広さです!!

そして、
冒頭にもお見せしたルーフバルコニー!

南東側の海は、長者ヶ崎の先まで見渡すことができます!

西側ははっきりと江ノ島が見え、空気の澄んだ冬には、富士山が見えるでしょう!
この抜け感は、ヒルトップのこの土地でしか味わうことができません!
夏は花火大会もばっちり!
この地で、家族や友達と素敵な湘南ライフを過ごしてみてはいかがでしょうか?
なお、内見は日にちの調整が必要な為、お早目のご連絡をお待ちしております!
-
- この記事が気に入ったら「シェア」をお願いします!
- Tweet
物件詳細情報
| 所在地 | 鎌倉市七里ガ浜2丁目 | ||
|---|---|---|---|
| 交通 | 江ノ島電鉄線「鎌倉高校前」駅徒歩9分 | ||
| 販売価格 | 26,800 万円 | ||
| 土地面積 | 236.95㎡(71.68坪) | 建物面積 | 157.72㎡(47.71坪) |
| 土地権利 | 所有権 | 建ぺい率/容積率 | 40%/80% |
| 構造 | 木造モルタルガルバリュウム鋼鉄2階建 | 間取り | 4LDK+ルーフバルコニー |
| 築年月 | 2025年6月 | 駐車場 | インナーガレージ1台+2台(車種による) |
| 地目 | 宅地 | 地勢 | 高台 |
| 用途地域 | 第1種低層住居専用地域 | 都市計画 | 市街化区域 |
| 接道状況 | 東側公道約4mに接道 | ||
| その他法令上の制限 | 第2種風致地区 宅地造成工事規制区域 景観計画 住民協定 | ||
| 現況 | 空家 | 引渡 | 相談 |
| 設備 | 公営水道 本下水 都市ガス | ||
| 取引態様 | 媒介 | ||
| 備考 | |||
| 掲載開始日 | 2025/06/06 | 広告有効期限 | 2025/09/05 |
| 物件管理番号 | 3994 | ||
| 返済シミュレーション |
|---|
お問い合わせ/ご相談
CONTACT
- お電話でのお問い合わせ
- 0467-38-8130
- メールでのお問い合わせ
- この物件への「お問い合せ」「ご相談」は、以下メールフォームからご連絡下さい。
- 下記のフォームに、ご相談したい内容と必要事項をご記入下さい。





















