買いたい
FOR SALE
求ム、紡ぎ人【中古戸建・土地】
鎌倉×売買
本日は番外編です!
場所は横浜市金沢区高舟台!
ココです!
.png)
湘南エリアでお探しのお客様にはあまりなじみのない地名かもですが、
実は車で20分ほどドライブすると鎌倉に着いちゃうそんな場所!
近くには朝比奈IC、車で15分走ればコストコもあります。
学区としては、高舟台小学校、中学校は横浜市立大道中学校です!
さぁ早速ご紹介!

南東角地にスンと構える真っ白なお家!!
こちらが今回お預かりしたお家です。

車庫は奥行きがあり、車1台とめてもゆとりがあります。
では早速お邪魔します。
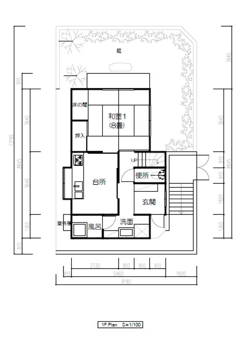
1階の間取りはこちら

1階にはお風呂・ダイニング・和室があります。


1977年3月生まれの現在48歳のお家です。
室内には傷や痛み、長年生活を支えてきたので一部傾いている場所があります。



.jpg)
リノベ案も作成しております。
例えばホラこのように、

思い切って1階は、大きなリビング・ダイニングスペースに変更!
そして大きなウッドデッキをつけてお庭を楽しむ。

このようなプランもありかもですね!
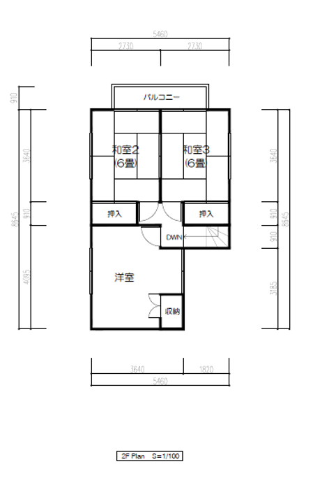
2階の間取りはこちら。
洋室1部屋と、和室が二間。
.png)
こちらが北側にある洋室です。


和室二間はこちら。


.jpg)
2階のリノベ案はこんなイメージ!

既存の間取りを活かしながら、新しいものに入れ替えるそんなイメージです!
高台にある分譲地なので、
お部屋からの抜け感がこれまたヨシです!


窓を開けると気持ちの良い風が室内をビュ~ビュ~通り抜けます!
思い切ったリノベーションを楽しむヨシ、
土地から新築をたてるもよし!
ご興味あるお客様、現地をご案内しますので
岩﨑までご連絡ください~!
-
- この記事が気に入ったら「いいね!」をお願いします!
- Tweet
物件詳細情報
| 所在地 | 横浜市金沢区高舟台1丁目 | ||
|---|---|---|---|
| 交通 | 京浜急行電鉄本線「金沢文庫駅」バス11分「自治会館前」徒歩1分 | ||
| 販売価格 | 1,880 万円 | ||
| 土地面積 | 99㎡ | 建物面積 | 79.47㎡ |
| 土地権利 | 所有権 | 建ぺい率/容積率 | 建ぺい率50% 容積率100% |
| 構造 | 木造亜鉛メッキ鋼板葺2階建 | 間取り | 4DK |
| 築年月 | 1977年3月 | 駐車場 | 有 |
| 地目 | 宅地 | 地勢 | 高台 |
| 用途地域 | 第一種低層住居専用地域 | 都市計画 | 市街化区域 |
| 接道状況 | 南側公道に約12.16m接道・東側公道に12.36m接道 | ||
| その他法令上の制限 | 宅地造成等工事規制区域・建物再生可能エネルギー利用促進区域 | ||
| 現況 | 空家 | 引渡 | 相談 |
| 設備 | 公営水道・本下水・プロパンガス | ||
| 取引態様 | 媒介 | ||
| 備考 | 物件は築年数相当の傷、痛みがあります。図面と現況が異なる場合は現況を優先します。 土地・建物契約不適合責任免責 | ||
| 掲載開始日 | 2025/11/3 | 広告有効期限 | 2025/02/2 |
| 物件管理番号 | 4179 | ||
| 返済シミュレーション |
|---|
お問い合わせ/ご相談
CONTACT
- お電話でのお問い合わせ
- 0467-38-8130
- メールでのお問い合わせ
- この物件への「お問い合せ」「ご相談」は、以下メールフォームからご連絡下さい。
- 下記のフォームに、ご相談したい内容と必要事項をご記入下さい。





























