買いたい
FOR SALE
自然が近い。この葉山が好き【土地 プラン有り】
葉山×売買
鎌倉や逗子で土地をお探しのお客様。
葉山に来ませんか!
今回ご紹介させていただく土地は、
森戸神社や森戸海岸が徒歩9分。

・朝の散歩をしながらちょっと富士山でも見に行こっかな♪
・子供と犬を連れて広いビーチで疲れるまで走り回ろうかな♪
・サップにカヤック、釣りにヨガなど新しい趣味を始めようかな♪
などなど、生活が豊かになること間違いのないそんな住まいを手に入れるチャンスです!

立地は、元町ユニオン周辺の人気のエリア。

それでいて、

海抜20mの高台。
各種ハザードもご安心いただける場所です。

緩やかな坂で。

葉山の自然や
葉山らしい個性豊かなお家が建ち並ぶ雰囲気のいい場所なので、
私個人としては、あっという間にお家に着いたなぁ。という印象。

それでいて、

この抜け感!!仙元山を望むビューを味わえます。

ポツンと佇む、葉山教会。
この景色を家族で眺めながら生活ができるなんて、なんて幸せなんでしょう!

敷地はこちら!
すでにNo1区画のみとなってしまいました。
ご決断はお早めに!

現地は造成済み。
一から自分で造成をしていたら費用と時間が掛かって大変です!!
これは、ありがたい。
車は、車種にもよりますが、2台は駐車可能。

駐車場から階段を降りて、

実際に家が建てられる部分に到着です。
この位置からでも、空が大きく広がり気持ちの良さが伝わります。
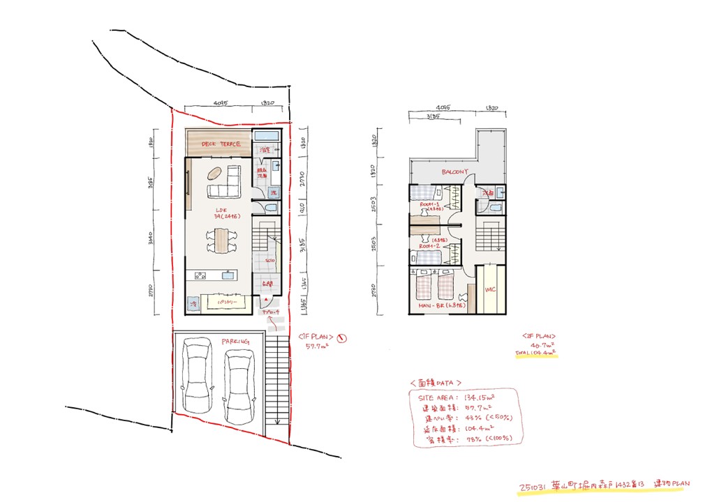
さて、では実際にどれくらいのお家が建てられるのか。。。
それがこちら!!

あくまで参考としての間取りですが、イメージしてみてください。
20帖以上のLDKに洋室が3部屋。
家族4人で住むには十分な広さです。
デッキテラスを作ってみたり、2階には広めのバルコニー。
この土地にはこんな遊び心があっても良いかもしれません。

1階のテラスからはこのような景色。
実際には、基礎などでさらに数十センチ高くなるのでもっと気持ちよく感じることができるでしょう。
目線も気にせず生活ができるのも嬉しいですね。

陽当たりも良く、南側に大きく窓を作っても良いかもしれません。
本当に落ち着いた、鳥のさえずりが響き渡る土地。
海も近く、スーパーも近い。
葉山の自然を全力で感じられるこの土地で、夢のマイホームを建ててみてはいかがでしょうか?
葉山でお探しのお客様は必ず見てほしい土地です。ぜひ、お問い合わせください!
ご連絡お待ちしております。

徒歩9分の森戸神社。
このプランを作ったのは…
- モヤデザイン一級建築士事務所小川 友紀
-
細長い敷地形状を活かして、1階は廊下のない24帖のLDKに。LDKから繋がるウッドデッキに面して、半露天風呂気分が味わえる浴室を配置しました。
2階は大容量のファミクロと、山並みを見渡せるバルコニー。ウッドデッキに柱を落とせば、3.6×5.8mの広々バルコニーにすることも可能です!
-
- この記事が気に入ったら「いいね!」をお願いします!
- Tweet
物件詳細情報
| 所在地 | 葉山町堀内 | ||
|---|---|---|---|
| 交通 | JR横須賀線「逗子」駅バス10分 停歩7分 | ||
| 販売価格 | 4,180 万円 | ||
| 土地面積 | 134.15㎡(40.58坪) | 建物面積 | |
| 土地権利 | 所有権 | 建ぺい率/容積率 | 50%/100% |
| 構造 | 間取り | ||
| 築年月 | 駐車場 | 有(2台分 車種による) | |
| 地目 | 宅地 | 地勢 | 高台 |
| 用途地域 | 第一種低層住居専用地域 | 都市計画 | 市街化区域 |
| 接道状況 | 南西側公道約4.0mに接道 | ||
| その他法令上の制限 | 宅地造成工事規制区域 葉山町まちづくり条例 | ||
| 現況 | 更地(造成済み) | 引渡 | 相談 |
| 設備 | 公営水道 公共下水 都市ガス | ||
| 取引態様 | 媒介 | ||
| 備考 | |||
| 掲載開始日 | 2025/11/01 | 広告有効期限 | 2026/1/31 |
| 物件管理番号 | 4180 | ||
| 返済シミュレーション |
|---|
お問い合わせ/ご相談
CONTACT
- お電話でのお問い合わせ
- 0467-38-8130
- メールでのお問い合わせ
- この物件への「お問い合せ」「ご相談」は、以下メールフォームからご連絡下さい。
- 下記のフォームに、ご相談したい内容と必要事項をご記入下さい。






























