買いたい
FOR SALE
さよなら、カーテン生活【マンション】
逗子×売買
今回ご紹介するマンションは、材木座と披露山住宅のちょうど真ん中。

逗子マリーナや小坪漁港もすぐです。
こーんな高台に

こーんな豪華なマンションが。

ご存知の方もいらっしゃるはず、

その名も、「シーサイドコート逗子望洋邸」。
現地に降り立ち、見上げると・・

圧倒的な存在感に目を奪われます。
"マンション"というよりは"建造物"という表現がしっくりくるような。
東急不動産が2010年に分譲した
大成建設施工の全66戸の高台マンション。
.jpg)
どこかの5つ星ホテルのようなエントランスを入ると・・
どこぞの近代美術館に招かれたような

モダンな家具や設計に驚かされます。
天井や照明の曲線が
海の波を感じさせてくれる。と感じるのは私だけでしょうか。
.jpg)
共用部の造りも、本当にリッチです。

高級感のある内廊下設計。
.jpg)
防犯性やセキュリティー性もしっかり守られる。
ワクワクしながら歩いている、あっという間にお部屋の前に到着。
新聞受けがこれまたホテルみたい。
.jpg)
ノルディックオーシャン・パールって感じのお色味が素敵じゃないですか?
重厚感のある扉を開けると・・
.jpg)
この玄関タイルと随所にあるダウンライトが高級感を醸し出す。
右手のシューズ収納を開けると
.jpg)
傘立てがあったり、ペンや印鑑も入れれるニッチな配慮がさすが。
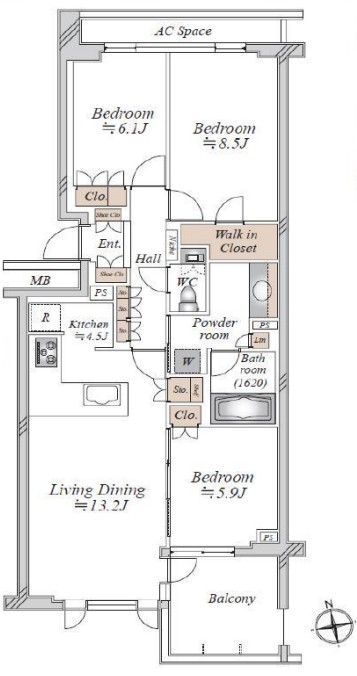
間取はこちら、87.77㎡の3LDK
.jpg)
クロスは新しく張替えておりますが、
それ以外はほとんどそのままの状態です。
では早速リビングに・・
.jpg)
高台らしく、前に建物がないから、
こんなに陽も入るし
.jpg)
窓からはこの開放感。
.jpg)
ちらり海も見えます。
ここにソファーを置いて、湘南の空と風を感じながら
.jpg)
ゆ~~ったり寛げそう!
間仕切りを撤去したら、隣の洋室と合体させて約19帖のLDKにもなりますね。
.jpg)
バルコニーに出て
このスペシャルな空間を愉しんでいただきたい。
.jpg)
これだけ陽があたるから
植物を沢山育ててもスクスク育ちそう。
広さも8.99㎡あるから洗濯物もゆとりをもって干せそうですね!
.jpg)
そうそう、窓を開けながら
こうしてジャバラの網戸を閉めれば
.jpg)
虫を気にせず、海から吹き抜ける風を部屋の中で感じられる。
高台に来たからこそのこの開放感とプライベート感。
.jpg)
たまりませんね。
つづいてキッチン。
.jpg)
L字で作業台もかなーり広くて羨ましい。
.jpg)
お掃除もしやすく、スタイリッシュなのが◎。
.jpg)
洗い物をしながら湘南の空と緑を眺める。

この景色が見えるお部屋。
たいていのマンションだと
目の前に電線があったり、
植栽の向こうには道路があって人が歩いていたりしますよね。
それを気にしなくて良いのは、高台だからこそ!
「さよなら、カーテン生活」
お手洗いはタンクレスで
.jpg)
手洗いもしっかりついてますよ~!
.jpg)
洗面スペースもシンプルかつ洗練された造りで素敵。
.jpg)
お風呂もかなり丁寧に使用されていたのか、かなり綺麗です。
ハウスクリーニングも実施済み。
.jpg)
1.6m×2.0mサイズの広々タイプなのが嬉しい。
北側の8.5帖のお部屋もお見せします。

北側の窓を開けるとこんな感じ。

目の前が廊下ではないのも安心ポイントですね。
本当にプライバシー性が保証されてる。

ウォークインクローゼットもしっかり完備。
是非、ご内覧ください。
.jpg)
この感じはなかなか僕の乱文では伝わらないんです・・。
逗子から鎌倉へ車で抜ける時、
この入口を目にした方もいらっしゃるのでは?
.jpg)
繰り返しですが、この物件はセキュリティー面がポイントです。

さらに!
さすがシーサイドコート逗子望洋邸。
ゲストルームやビューラウンジなどの共用施設も充実しております。
.jpg)

ご関心いただいた方、
お問い合わせをお待ちしております。
-
- この記事が気に入ったら「シェア」をお願いします!
- Tweet
物件詳細情報
| 所在地 | 逗子市小坪5-17-3 シーサイドコート逗子望洋邸 | ||
|---|---|---|---|
| 交通 | 横須賀線「鎌倉」駅バス14分「姥子台」停歩4分、横須賀線「逗子」駅バス11分「小坪」停歩6分 | ||
| 販売価格 | 8,980 万円 | ||
| 土地面積 | 建物面積 | 壁芯87.77㎡/バルコニー8.99㎡ | |
| 土地権利 | 所有権 | 建ぺい率/容積率 | |
| 構造 | 鉄筋コンクリート造 地上8階建2階部分 | 間取り | 3LDK |
| 築年月 | 2010年10月 | 駐車場 | 有 |
| 地目 | 地勢 | ||
| 用途地域 | 第一種低層住居専用地域 | 都市計画 | |
| 接道状況 | |||
| その他法令上の制限 | |||
| 現況 | 空室 | 引渡 | 相談 |
| 設備 | 上下水道、都市ガス | ||
| 取引態様 | 媒介 | ||
| 備考 | 【施工会社】大成建設【管理会社】(株)東急コミュニティー【管理形態】全部委託【管理方式】日勤 【管理費】月額28,300円 【修繕積立金】月額22,820円 【その他費用】インターネット使用料月額1,320円 CATV利用料月額550円【総戸数】66戸 【ペット飼育】可(飼育細則あり)【リフォーム履歴】室内クロス張替、ハウスクリーニング、一部窓リペア※2023年大規模修繕工事実施済み ※現況と図面が異なる場合は現況を優先します。 | ||
| 掲載開始日 | 2025/11/22 | 広告有効期限 | 2026/02/21 |
| 物件管理番号 | 4206 | ||
| 返済シミュレーション |
|---|
お問い合わせ/ご相談
CONTACT
- お電話でのお問い合わせ
- 0467-38-8130
- メールでのお問い合わせ
- この物件への「お問い合せ」「ご相談」は、以下メールフォームからご連絡下さい。
- 下記のフォームに、ご相談したい内容と必要事項をご記入下さい。

























