買いたい
FOR SALE
〈完成予定VR公開〉まるで七里の天守閣【新築戸建】
鎌倉×売買
もし石川五右衛門がこの物件に来たら、
思わず、「絶景かな、絶景かな」と漏らすのでは・・?

泥棒さんには来てほしくないですが、
みなさんには一度来ていただきたい。
そんな新築戸建がまもなく誕生します。
まるで七里の天守閣!
目の前に海ズドン!も確かに良いのですが
人々が暮らす街並み・日常を、静かに俯瞰できる。
高いところからの景色は
ただ「きれい」なだけじゃなくて。
自分が守られているような、少し誇らしいような、
不思議な安心感を感じませんか?
場所は鎌倉山を七里に抜けた

この先です。
景色が急に緑から、2種類の青に変わる。

空が広くなったこの角を曲がります。
歴史的に、城や祈りの場が丘の上にあったように
安心できる居場所は、いつも"一段上"。
街の音がふっと遠のき、空が近くなる。
深呼吸したくなるのは、この高さがもたらすものなのかしら。
とか考えながら、振り向くと・・

ズドーーンと構える霊峰が!
この電柱のない開発道路の奥に、今回の物件がございます。
ん?どこかで既視感がある?

そう実は、この開発分譲地内の土地を
最近、動画でもご紹介しているので是非ご参考ください。↓↓
今回は満を持して建売が建つということで建築途中ですがご紹介。
.jpg)
お~もう結構出来上がってますね。
完成するとこんな感じ!↓
%E3%80%91%E9%8E%8C%E5%80%89%E5%B1%B1_5%E5%8F%B7%E6%A3%9F_s.jpg)
国産の杉板を外壁に使っているようです。ステキ。

***********
【NEW!】
↓ここで、お部屋の中のパースが完成しましたのでご紹介です!↓
内覧VR
家具はイメージですが、とっても上質じゃないですか!?
写真も貼っておきますね。



_s.jpg)
***********
ここからは色んな角度からご紹介!
上から見ても
.jpg)
後ろから見ても
.jpg)
横から見ても
.jpg)
いいお家。
困っちゃいますね、全方向美戸建です。
.png)
でも大事なのはやっぱ中身。
少し見づらいかもしれませんが、図面を先行公開です。
抜けている南向きに
おおきな窓をこれでもか!と配置しています。楽しみ。
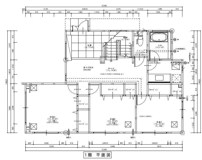
1階の間取りはこちら。

南方向に3部屋!
そしてひろーい玄関に水回り。
そうそう、西側の洋室Aのところにはウッドデッキも出来ますよ!
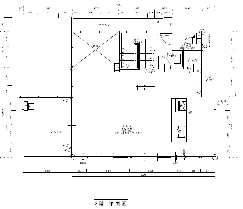
続いてリビングのある2階です。
ん・・・?
.png)
な、なんとLDK30.2帖!!
あと、このバルコニー・・気になりますよねぇ・・
高所恐怖症の私ですが!
今回!
石川五右衛門ばりに!バルコニーまで登ってみました。
するすると南方向をすり抜け(1階からこの開放感ですよ・・!)

到着!!

おおおお、きれいなスクエア!広い!
景色は・・

ね、「まるで七里の天守閣」じゃないですか?
でもなんか写真ですと伝わらない・・。
現地で実際に目で見ている景色はもっとすごくて、
激写すべくネットの隙間から撮ったのが・・
.jpg)
冒頭の写真でした。
七里の街がちっちゃく見えません?
右側に江ノ島も見えますよね?夜は綺麗ですよこれは。
工事中のお部屋の中を少し覗いてみると

この陽当りですよ!

きっと中からみる景色は、開放感が凄いことでしょう。
ここまでいかがでしたでしょうか。

ここのバルコニーに立った瞬間、思わず声が出そうになる。
鎌倉山の眺めは、まさにそんな瞬間をくれる場所。
鎌倉山の眺めは、昔の人が高みを選んだ理由を
理屈なしで教えてくれる。
お問合せ、お待ちしております。
-
- この記事が気に入ったら「シェア」をお願いします!
- Tweet
物件詳細情報
| 所在地 | 鎌倉市鎌倉山2丁目 | ||
|---|---|---|---|
| 交通 | 江ノ島電鉄「七里ヶ浜」駅バス7分 停歩5分 | ||
| 販売価格 | 13,800 万円 | ||
| 土地面積 | 208.8㎡(約63.1坪) | 建物面積 | 158.44㎡(約47.9坪) |
| 土地権利 | 所有権 | 建ぺい率/容積率 | 40%/80% |
| 構造 | 木造ガルバリウム鋼板葺2階建 | 間取り | 3LDK |
| 築年月 | 2026年3月完成予定 | 駐車場 | |
| 地目 | 宅地 | 地勢 | |
| 用途地域 | - | 都市計画 | 市街化調整区域 |
| 接道状況 | 北側約5.0m公道(開発道路) | ||
| その他法令上の制限 | 第2種風致地区、宅地造成工事規制区域、最低敷地面積200㎡ | ||
| 現況 | 建築中 | 引渡 | 相談 |
| 設備 | 都市ガス、本下水、個別浄化槽 | ||
| 取引態様 | 媒介 | ||
| 備考 | ※敷地内に雨水浸透施設あり※本物件開発宅地内で、売主による宅地造成工事及び建築計画があります(詳細未定)※上記販売価格には建物消費税を含みます。 | ||
| 掲載開始日 | 2025/12/30 | 広告有効期限 | 2026/03/29 |
| 物件管理番号 | 4268 | ||
| 返済シミュレーション |
|---|
お問い合わせ/ご相談
CONTACT
- お電話でのお問い合わせ
- 0467-38-8130
- メールでのお問い合わせ
- この物件への「お問い合せ」「ご相談」は、以下メールフォームからご連絡下さい。
- 下記のフォームに、ご相談したい内容と必要事項をご記入下さい。





























