買いたい
FOR SALE
ワクワクすっぞ!【リノベーション中・マンション】
鎌倉×売買
.jpg)
大船好きの皆様こんにちは。
社内で一番大船を愛している私が今ワクワクしています
いきなりですがなぜドラゴンボールの悟空がワクワクしているのかお分かりでしょうか?
悟空が「オラ、ワクワクすっぞ!」と胸を躍らせる理由は、
純粋に「強い相手との戦闘」を愛するサイヤ人としての戦闘狂の面と、自身の限界を超えて成長することそのものを楽しめる性格だからです。
強敵を前にして恐怖よりも「その先を愉しみたい」という前向きな闘争心が、彼をワクワクさせているみたいです

私も今、全く同じ気持ちです。
「大船」駅から平坦で徒歩約14分の立地、
旧耐震になりますがエレベーターのある5階のお部屋、
そして何よりフルリノベーションをして2890万円という価格、
このお部屋が完成してしまったら直ぐに売れてしまうのではないか?
そんな気持ちが早まり今の段階で紹介を決めました。
.jpg)
不思議と螺旋階段がカリン塔に見えてくる
屋上にはカリン様が待っていて、仙豆をくれる期待感があります
.jpg)
そんな事は冗談で
一気にエレベーターで5階に駆け上がります
.jpg)
扉を開ければまだ未知の世界
いや~これは大掛かりなリノベーションになりますね
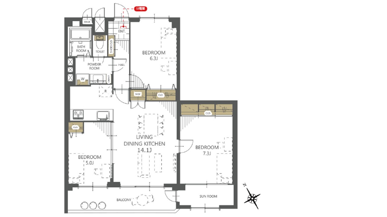
リノベーション後はこういった間取りになります。
.jpg)
ここにキッチンが来て
.jpg)
ここは6.3帖の洋室
.jpg)
見つめる先には水回り関係が配置されるのかと想像するのが楽しみ

間取りを見ると3LDKのうちリビングと残り2部屋は南側に面しているのもオススメポイントですね

ここが南側に面している7.3帖の洋室です
.jpg)
昭和48年のマンションなので期待はしていませんでしたが見てくださいこれを
「サッシが新しい」沢山内覧をしてるとこの嬉しさが分かります。
.jpg)
バルコニーからの陽の入りも満足いくかと思います。

セブンイレブンはすぐそこ
お部屋を出たら見下ろせるほどすぐ近くなんです

「大船」駅の良さを語ろうと思えば精神と時の部屋に入りたいぐらいです

こんなものや

あんなもの
神奈川のアメ横と言われているだけあります。

駅前は商店街でガヤガヤしていますが
少し道をそれてマンションの方へ歩いていくとこんなにも静かにで綺麗な通りにでます。
ここを芸術館通りといいます、

なぜ芸術館通りなのかは「鎌倉芸術館」があるから
よくコンサートや古典芸能に講演会などで使用されてる印象です、
.jpg)
道中も本当に嫌じゃないんです、あっという間にマンションに到着です。
大船が好きな方ならわかるここのマンションのワクワク感、
知らない方には色々と生活動線をお話しさせてください。
目をつけるなら今からではないでしょうか
是非お問い合わせお待ちしております。
-
- この記事が気に入ったら「シェア」をお願いします!
- Tweet
物件詳細情報
| 所在地 | 鎌倉市大船5丁目 湘南大船マンション | ||
|---|---|---|---|
| 交通 | JR東海道線・横須賀・京浜東北線・湘南モノレール「大船」駅徒歩14分 | ||
| 販売価格 | 2,890 万円 | ||
| 土地面積 | 建物面積 | 76.82㎡ | |
| 土地権利 | 所有権 | 建ぺい率/容積率 | |
| 構造 | SRC造9階建5階部分 | 間取り | 3LDK |
| 築年月 | 昭和48年1月 | 駐車場 | 有(月/10,000円) |
| 地目 | 地勢 | ||
| 用途地域 | 都市計画 | 市街化区域 | |
| 接道状況 | |||
| その他法令上の制限 | |||
| 現況 | リノベーション中 | 引渡 | 相談 |
| 設備 | 公営水道・本下水・都市ガス | ||
| 取引態様 | 媒介 | ||
| 備考 | 【総戸数】69戸【管理会社】JR西日本住宅サービス(株)【管理形態】全部委託【管理方式】日勤【エレベーター】有【ペット飼育】不可 【管理費】月/13,600円【修繕積立金】月/18,700円 リノベーション履歴(2026年4月完工予定) クロス張替え・フローリング張替え・システムキッチン、洗面化粧台、浴室、トイレ建具、配管新規交換 | ||
| 掲載開始日 | 2026/2/01 | 広告有効期限 | 2026/5/02 |
| 物件管理番号 | 4298 | ||
| 返済シミュレーション |
|---|
お問い合わせ/ご相談
CONTACT
- お電話でのお問い合わせ
- 0467-38-8130
- メールでのお問い合わせ
- この物件への「お問い合せ」「ご相談」は、以下メールフォームからご連絡下さい。
- 下記のフォームに、ご相談したい内容と必要事項をご記入下さい。































