買いたい
FOR SALE
〈動画追加〉極!ココハウス魂!【DIY、リノベ向き中古戸建】
葉山×売買
今回のご紹介は、
極! ココハウス魂!!
ココハウスの魂とは、、
「古くても良いものは甦らせる」
Old is Gold.
古い物には価値がある
ですね!!
ココハウス鎌倉本店は、
大正時代!!の古民家を時間かけて再生!
賃貸部 オーナー館も
こちらも見事に完全復活!!
1階御成町食堂、2階ココ屋(事務所)
普通の民家でしたが、、

外壁を2トーンにしてオシャレに!
こちらもリノベで見違えました!!
まだまだあるんです
葉山町の築100年や、由比ヶ浜の新プロジェクトなどなど
.jpg)
少しずつ 丁寧に 時間をかけて
職人さんと一緒に悩みながら 蘇らせる

そんなココハウスが言うのです!
今回の物件は
極み!!
はっきり言います
現在はボロボロの中古戸建て
だが、しかし!!!
この立地は貴重!
柱など主要構造は生きています!!
我を助けよ!
光よ蘇れ!!
現在のお住まいから、休みの日に少しずつ通って、
「DIYで蘇らせる
自分だけの秘密基地」
山の中の一軒家 車は入れません
だが、しかし!
住所は「葉山町一色」!!
.jpg)
一色海岸や葉山御用邸へ徒歩11分!
まさに奇跡の立地!!
物件の近くにはセブンイレブンもございます
ここから物件へ向かいます
三が岡緑地ハイキングコース そう 山道です
そしてご近所さんには
加地邸!
知る人ぞ知る葉山の名邸が!!
帝国ホテルを設計したフランクロイドライトの弟子
遠藤新が設計した国の登録有形文化財
数々の映画やドラマ、エルメスの新作発表会でも利用されたようです
この加地邸へも車では来られません
更に山を進みます だが、しかし!!
バイクでなら来られる!
と私は思います!
いよいよ 極!に到着
周囲は山 気分は登山
だが、しかし!!
独り占め 広がる竹林の借景
夜は竹林をライトアップしましょう!
特別感!!!

(現地写真を基に、夕暮れ時にライトアップしたイメージ)
周囲には他にも戸建が2件
別荘利用か 空き家か
普段は人の気配はありません だが、しかし!!
ご安心下さい!
第一種低層住居専用地域です!
.jpg)
建物周囲も一部は荒れています
だが、しかし!!
物件価格880万円 破格の所有権
これが大人の秘密基地!!
そして玄関へ
玄関横の階段は隣地 そう他人の土地
現在は利用不可 だが、しかし!!
新たに設けられた石階段が利用出来ます!
もしくは
隣地所有者へ交渉し、階段の利用承諾を得ましょう
玄関ドアは、
外側と内側どちらもツタに覆われています
だが、しかし!!
ドア自体は綺麗
内側も広く確保されてます
室内にまでツタが、、
天井は剥がれ落ち、、
だが しかし!!
基本的な構造はしっかり維持されております
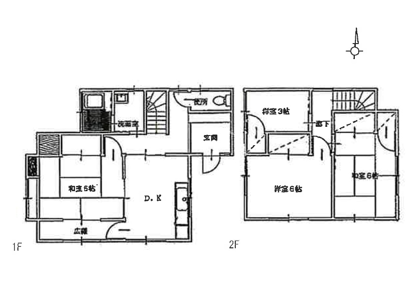
1階はキッチン、ダイニング、和室 そして水回り
2階は3部屋です
.jpg)
脱衣スペース
ツタが観葉植物に見えてきました!
お風呂もあります
ツタは友達!
どこまで変身させられるのか
さぁ DIY 腕の見せ所!!
では2階へ 階段はしっかりした印象
2階の詳細は、
ぜひ動画にてお楽しみ下さい!
こちらの物件、
土地と建物は全て現況での引渡しです
一切の保証などはございません
こちらは元ウッドデッキの撤去跡です
ここにウッドデッキあれば素敵ですよね!
ココハウスはこの物件に価値を見出しました!
内覧の際、
現在はこちらから室内へ入ります
あなたの手で 極!を復活させ、
葉山の秘密基地 手に入れて下さい!
ご興味のある方は
お気軽ではなく、気合い入れてご連絡下さい !
担当:岩井たつや
電話:0467-38-8130
オーナー様からのコメント

- 葉山の山を満喫して下さい。
- ハイキング途中にこの物件を見つけてセカンドハウスとして購入しました。
家族の都合により利用出来なくなり、今回売却を決断しました。
賃貸での活用も検討しております。ぜひご内覧下さい。
この物件の動画はこちら!
-
- この記事が気に入ったら「シェア」をお願いします!
- Tweet
物件詳細情報
| 所在地 | 葉山町一色 | ||
|---|---|---|---|
| 交通 | JR横須賀線「逗子駅」バス16分 バス停「旧役場前」徒歩3分 | ||
| 販売価格 | 880 万円 | ||
| 土地面積 | 153㎡(46.2坪) | 建物面積 | 70.38㎡ |
| 土地権利 | 所有権 | 建ぺい率/容積率 | 40% 80% |
| 構造 | 木造瓦葺2階建て | 間取り | 4DK |
| 築年月 | 1980年(昭和55年)11月 | 駐車場 | 無 |
| 地目 | 山林 | 地勢 | |
| 用途地域 | 第一種低層住居専用地域 | 都市計画 | 市街化区域 |
| 接道状況 | 南側約1.8mの法4条第1項但し書き道路に約11m接道 | ||
| その他法令上の制限 | 一色風致地区(第四種風致地区)、土砂災害警戒区域 | ||
| 現況 | 空 | 引渡 | 相談 |
| 設備 | 東京電力、公営水道、本下水、プロパンガス | ||
| 取引態様 | 媒介 | ||
| 備考 | 現況での引渡しとなります。土地と建物は契約不適合責任は免責です。 再建築の際、法第43条第2項第2号の規定による認定基準があります。 前面道路は、はやま三ヶ岡山緑地のハイキングコース(つつじコース)になっております。 葉山町より特定空家等に指定され、軒天や壁の修理を行うよう指導されています。 受水槽を使用していますが、性能の保証はございません。 現在浄化槽を利用していますが、前面道路の本下水に接続するには別途費用が発生します。 | ||
| 掲載開始日 | 2026年3月22日 | 広告有効期限 | 2026年6月21日 |
| 物件管理番号 | 4323 | ||
| 返済シミュレーション |
|---|
お問い合わせ/ご相談
CONTACT
- お電話でのお問い合わせ
- 0467-38-8130
- メールでのお問い合わせ
- この物件への「お問い合せ」「ご相談」は、以下メールフォームからご連絡下さい。
- 下記のフォームに、ご相談したい内容と必要事項をご記入下さい。










