買いたい
FOR SALE
「自然素材に癒される空間」【マンション】
鎌倉×売買
ここは、由比ガ浜海岸まで徒歩2分の立地にある低層マンション。
海沿いの143号線は結構交通量があるのですが、
そこからほんのちょっと入っただけなのに
急に落ち着いた雰囲気になるのです。
扉を開けた瞬間、ふっと力が抜ける感覚。
気が付くと深呼吸している私。
体は正直です。自然素材の気持ち良さには、無意識に反応してしまうんです。
壁はすべて珪藻土。
床は無垢のチーク材。
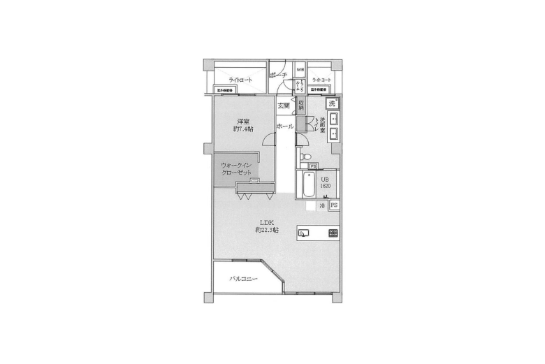
専有面積は85㎡超。
ゆとりのある1LDK
ホテルライクなお部屋なのです。
.jpg)
デザイン性、機能性、そして耐久性のすべての面で完璧を追求している
「ナニック」の木製可動ルーバーは、このまま残していただけるそうです。
※家具は含まれておりません。

ルーバーを開けると大きな窓から開放的な景色を望みます。
ご覧ください!!!
.jpeg)
バルコニーには、テーブルと椅子を置ける十分なスペースがあります。
.jpeg)
キッチンは、ステンレス製。水回りにはグローエ社製を採用。
これがまた、チーク材の無垢フローリングとタイルの壁との相性がいいのです。


洋楽をBGMに仕事がはかどります。


廊下にはライト付きのニッチがあります。

そして真鍮のトグルスイッチ!!

そして足元を優しく照らすフットライトと細部への拘りを感じます。

パウダールームもこの通り
天然木とタイルという一見対照的な二つの素材が、この空間では驚くほど美しく調和しています。

このバランスには脱帽です。


この細部までの拘り、いかがでしょうか。
ホテルライクという表現がぴったりではありませんか?

そしてベッドルーム
漆喰と無垢フローリングの自然素材は、心地よく穏やかで深い眠りへといざなうのです。

ベッドルームの奥には、大きなウォークインクローゼットがあります。
ここは、まるでセレクトショップと錯覚しそうな空間です。

暮らしているだけで、自然と呼吸が深くなる。
そこにいるだけで、癒される。
自然素材の力は偉大です。
こんな暮らしができたなら、心身ともに整うことでしょう。

青い空も青い海もいつもそこにある。


そして、大切なペットとも安心して暮らせ、海辺のお散歩が日常になる。
大自然がすぐそこにある暮らし、更に利便性も兼ね備えたそんな立地にあるマンションです。
徒歩2分以内に個性豊かな飲食店も点在しています。




134号線から、ほんのちょっと入っただけなのに、本当にすごく静かなんです。そして空気がいいのです。
実際にそこに行ったら、ご実感いただけることでしょう。
ここに住む理由は、きっと理屈ではなく感覚。
この空気感が好きかどうか、そしてこの自然素材の中で暮らせることに価値を見出せる
そんな方にピッタリです。
他で探そうとしても、そう簡単にはない唯一無二の物件です。
室内に入った瞬間に、ご実感いただけることでしょう。
※現在、居住中のため、基本的には土日のご内見になります。
どうしても別の日にということであれば、別途ご相談くださいませ。
-
- この記事が気に入ったら「シェア」をお願いします!
- Tweet
物件詳細情報
| 所在地 | 鎌倉市由比ガ浜4丁目 | ||
|---|---|---|---|
| 交通 | JR横須賀線「鎌倉」駅 徒歩16分 | ||
| 販売価格 | 8,180 万円 | ||
| 土地面積 | 建物面積 | 85.59㎡ | |
| 土地権利 | 建ぺい率/容積率 | ||
| 構造 | 鉄筋コンクリート造地上3階建て3階部分 | 間取り | 1LDK |
| 築年月 | 1999年2月 | 駐車場 | 有(17,000円~19,000円) |
| 地目 | 宅地 | 地勢 | 平坦 |
| 用途地域 | 第一種住居地域・近隣商業地域 | 都市計画 | 市街化区域 |
| 接道状況 | |||
| その他法令上の制限 | |||
| 現況 | 居住中 | 引渡 | 相談 |
| 設備 | 都市ガス 給湯:ガス給湯器 東京電力 公営水道 公共下水 公共下水 | ||
| 取引態様 | |||
| 備考 | ペット飼育可(飼育細則あり) 2018年リフォーム履歴あり | ||
| 掲載開始日 | 2025.3.2 | 広告有効期限 | 2025.3.3 |
| 物件管理番号 | 4353 | ||
| 返済シミュレーション |
|---|
お問い合わせ/ご相談
CONTACT
- お電話でのお問い合わせ
- 0467-38-8130
- メールでのお問い合わせ
- この物件への「お問い合せ」「ご相談」は、以下メールフォームからご連絡下さい。
- 下記のフォームに、ご相談したい内容と必要事項をご記入下さい。































