買いたい
FOR SALE
富士山江の島が正面にド~ン!(ほぼ)オーシャンフロント【土地】
葉山×売買
皆様こんにちは。
COCO-HOUSE葉山店の関浪です。
海に来ました!
この眺め
どこだと思いますか?
答えは、
葉山の森戸海岸
です。
砂浜で振り返ると
目に入る
こちら
こちら
こちらの
お家です
通路を進むと
もう一つ建物が
こちらの2軒の建物が建つ
お土地のご紹介です!
といっても
分かりづらいので
ここです!

バス通り(県道207号)からはいりますと
残念ながら道路が狭いので車は入れません(涙)
正面は海!
ほぼ(笑)
オーシャンフロント
です!
いま建っている建物からは
このように
海が
ドーンと
望めます!
行政に相談したところ
建物は
2軒を2軒とも建替えることの相談も可能で
2軒を解体して大きなお家を1軒建てることの相談も可能
との見解です!
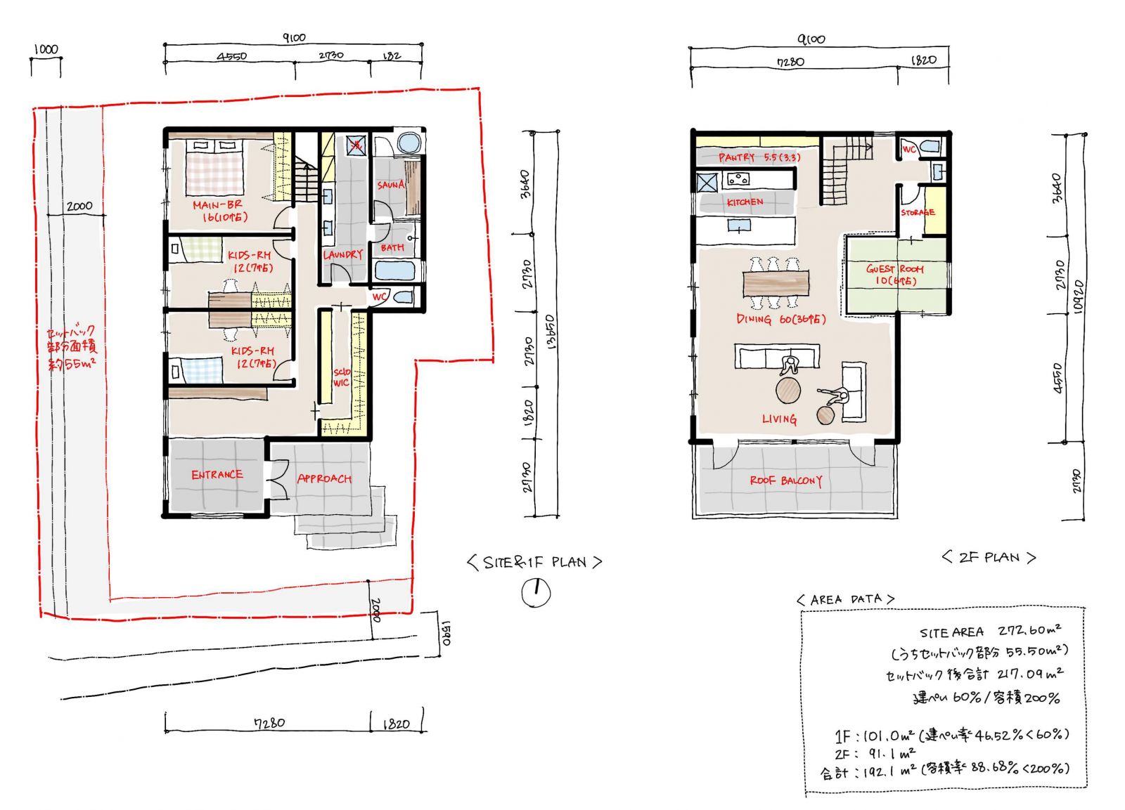
その場合、敷地はこのような形でセットバックが必要で、
有効敷地面積は、
65坪ほどになります。

このくらいのお家が建つとお考え下さい。
↓

(弊社小川作成)
このプランよりはもっと広い建物は可能かと思いますが、
道路が狭く、建築基準法第43条適用になるので、
2階建までとなります。
建物についてはお気軽にご相談くださいませ。
何はともあれ
ぜひとも
いちど
ご見学にいらしてください!
お問い合わせ
葉山店 046-876-6013
-
- この記事が気に入ったら「シェア」をお願いします!
- Tweet
物件詳細情報
| 所在地 | 葉山町堀内 | ||
|---|---|---|---|
| 交通 | JR横須賀線「逗子」駅バス10分「清浄寺」停徒歩2分 京急逗子線「逗子・葉山」駅バス8分「清浄寺」停徒歩2分 | ||
| 販売価格 | 1億5000万円 | ||
| 土地面積 | 272.60㎡(82.46坪) | 建物面積 | |
| 土地権利 | 所有権 | 建ぺい率/容積率 | 60%/200%(2階建まで) |
| 構造 | 間取り | ||
| 築年月 | 駐車場 | 道路が狭いためクルマ進入不可 | |
| 地目 | 宅地 | 地勢 | 平坦 |
| 用途地域 | 第一種住居地域 | 都市計画 | 市街化区域 |
| 接道状況 | 南側公道幅員約1.5-2.5mに接する(建築基準法第43条の通路) | ||
| その他法令上の制限 | 準防火地域、景観法、まちづくり条例、神奈川県建築基準条例など | ||
| 現況 | 古家2棟あり(現況での引渡し) | 引渡 | 相談 |
| 設備 | 公営水道、公共下水、プロパンガス、電気 | ||
| 取引態様 | 媒介 | ||
| 備考 | |||
| 掲載開始日 | 2026/04/06 | 広告有効期限 | 2026/07/31 |
| 物件管理番号 | 4386 | ||
| 返済シミュレーション |
|---|
お問い合わせ/ご相談
CONTACT
- お電話でのお問い合わせ
- 0467-38-8130
- メールでのお問い合わせ
- この物件への「お問い合せ」「ご相談」は、以下メールフォームからご連絡下さい。
- 下記のフォームに、ご相談したい内容と必要事項をご記入下さい。













