借りたい
FOR RENT
なんとなく、インダストリアル【店舗】
鎌倉×賃貸
新旧センスあふれるお店で賑わう由比ガ浜大通り。

鎌倉に住んでいる方なら、この写真見れば、「あぁ~!」とすぐに場所が分かるんじゃないでしょうか。

米印のショーウィンドウ、長き沈黙を破り、ついに・・募集です( -`ω-)キリッ
.jpg)
ショーウィンドウの横は、オープン席・駐輪場・看板置いたりと、アイディア次第でいろいろと使えそうです。
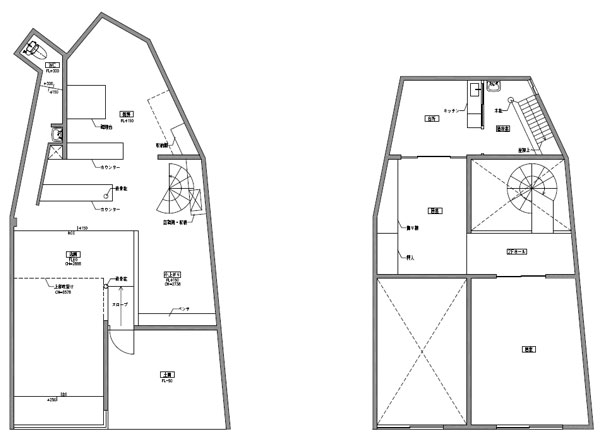
建物の形はちょっと変わっております。

1F:76.8㎡(23.23坪)、2F:57.1㎡(17.27坪)、合計:133.9㎡(40.5坪)
中、けっこう広いんです。

以前は飲食店でしたが、今回は飲食店NGですm(__)m

見下ろすと無機質な床

なんとなく、インダストリアル
上を見上げると、2階を吹き抜け天井裏まで、

どことなく、トラディッショナル

奥は元厨房エリア
綺麗に生まれ変わらせてください。

おトイレも交換が必要そうです。

そして中央の螺旋階段で2階へ行けます。

2Fは古民家の様相。

2Fの床はちょっと傾きを感じますが、現況渡し、貸主の方で修繕は行わない旨ご承知おきください。

2F、ビシっと綺麗にして利用しても良いですが、倉庫的な使い方も良さそうです。

由比ガ浜大通りの路面店

場所は申し分なし。

是非借りる方のセンスで素敵なお店に生まれ変わらせて下さい。
-
- この記事が気に入ったら「シェア」をお願いします!
- Tweet
物件詳細情報
| 所在地 | 鎌倉市由比ガ浜2丁目 | ||
|---|---|---|---|
| 交通 | JR横須賀線「鎌倉駅」徒歩7分、江ノ島電鉄「和田塚駅」徒歩4分 | ||
| 賃料 | 440,000円(税込) | ||
| 敷金/礼金 | 6/1 | 管理費 | 0円 |
| 土地面積 | 建物面積 | 133.9㎡(40.5坪)1F:23.23坪、2F17.27坪 | |
| 土地権利 | 建ぺい率/容積率 | ||
| 構造 | 木造亜鉛メッキ鋼板2階建て | 間取り | |
| 築年月 | 不詳 | 駐車場 | 無 |
| 地目 | 地勢 | ||
| 用途地域 | 近隣商業地域 | 都市計画 | 市街化区域 |
| 接道状況 | |||
| その他法令上の制限 | |||
| 現況 | 空 | 引渡 | 相談 |
| 設備 | 電力、都市ガス、公共上下水 | ||
| 取引態様 | 媒介 ※ご成約の際は仲介手数料(賃料1ヶ月分+消費税)を申し受けます。 | ||
| 備考 | 定期借家5年/借家人賠償特約付火災保険加入要/保証会社利用必須(初回月額70%、毎年更新賃料の10%)/現況渡し、引き渡し時に設置されている諸設備類は性能保証のない残置物扱い/保証金の償却:退去時10%/借主解約予告6カ月前/貸主インボイス登録なし/飲食店不可 | ||
| 掲載開始日 | 2025/12/12 | 広告有効期限 | 2026/3/12 |
| 物件管理番号 | 4240 | ||
お問い合わせ/ご相談
CONTACT
- お電話でのお問い合わせ
- 0467-38-8130
- メールでのお問い合わせ
- この物件への「お問い合せ」「ご相談」は、以下メールフォームからご連絡下さい。
- 下記のフォームに、ご相談したい内容と必要事項をご記入下さい。































