借りたい
FOR RENT
〈価格変更〉選び抜かれた空間【戸建】
鎌倉×賃貸
鎌倉から海へ向かう途中の 江ノ電周辺に、⾵情のある路地が残っています。

観光地の喧騒を忘れてしまう、そんな路地に、今回のお住まいがございます。

なんとも外観から、心を撃ち抜かれますね。
路地なので、お車は入らないのですが、バイクなら大丈夫ですよ。

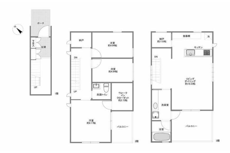
今回お貸出しするスペースは、3階建ての2-3階部分です。
中の様子は、もったいぶって小出しにさせていただきますね。



2階には、居室が3部屋と、お手洗いがございます。

そして、3階には、リビングと浴室です。




リビングから繋がるバルコニーからの眺めは、とっても気持ちがいいのです。


洗面台のタイルもステキですね。
.jpg)

スタイリッシュなのに、温もりを感じるのは、素材にこだわり抜いているからこそ、
これぞ、選び抜かれた空間

-
- この記事が気に入ったら「シェア」をお願いします!
- Tweet
物件詳細情報
| 所在地 | 鎌倉市由比ガ浜2丁目 | ||
|---|---|---|---|
| 交通 | JR横須賀線・湘南新宿ライン「鎌倉」駅 徒歩10分/江ノ島電鉄線「和⽥塚」駅 徒歩3分 | ||
| 賃料 | 25.8万円 | ||
| 敷金/礼金 | 2/1 | 管理費 | なし |
| 土地面積 | 建物面積 | 103.5㎡ | |
| 土地権利 | 建ぺい率/容積率 | ||
| 構造 | 木造3階建て(2-3階部分) | 間取り | 3LDK+2S |
| 築年月 | 2012年7月 | 駐車場 | 近隣相談(15,000円/月) |
| 地目 | 地勢 | ||
| 用途地域 | 都市計画 | ||
| 接道状況 | |||
| その他法令上の制限 | |||
| 現況 | 空家 | 引渡 | 相談 |
| 設備 | 都市ガス/公共上下水/システムキッチン/ガスコンロ(3⼝)/BT別/追焚/洗浄機能付温水便座/独立洗面台/エアコン4基(残置物)/ブラインド・カーテン(残置物)/駐輪場 | ||
| 取引態様 | 媒介 ※ご成約の際は仲介手数料(賃料1ヶ月分+消費税)を申し受けます。 | ||
| 備考 | 定期借家4年(再契約相談可)/当社指定借家人賠償特約付火災保険加入要/保証会社利用必須(初回月額50%、800円/月)/TV視聴・インターネット使用料借主負担/退去時ハウスクリーニング費用借主負担/再契約料:新賃料の1ヵ月分/ペット飼育不可/室内禁煙/民泊不可/町内会への加入必須 | ||
| 掲載開始日 | 2026/3/7 | 広告有効期限 | 2026/6/6 |
| 物件管理番号 | 4331 | ||
お問い合わせ/ご相談
CONTACT
- お電話でのお問い合わせ
- 0467-38-8130
- メールでのお問い合わせ
- この物件への「お問い合せ」「ご相談」は、以下メールフォームからご連絡下さい。
- 下記のフォームに、ご相談したい内容と必要事項をご記入下さい。































